3241 17th Ave ,Attached, Duplex, Oakland Park Second Add for Sale
3241 17th Ave for Sale






































Price $950,000.00
- Lot size 0
- Year Build 1963
- Waterfront
- Zip 33334
- Style Attached
- Parking Description
- Pool Yes
- Status Active
Description
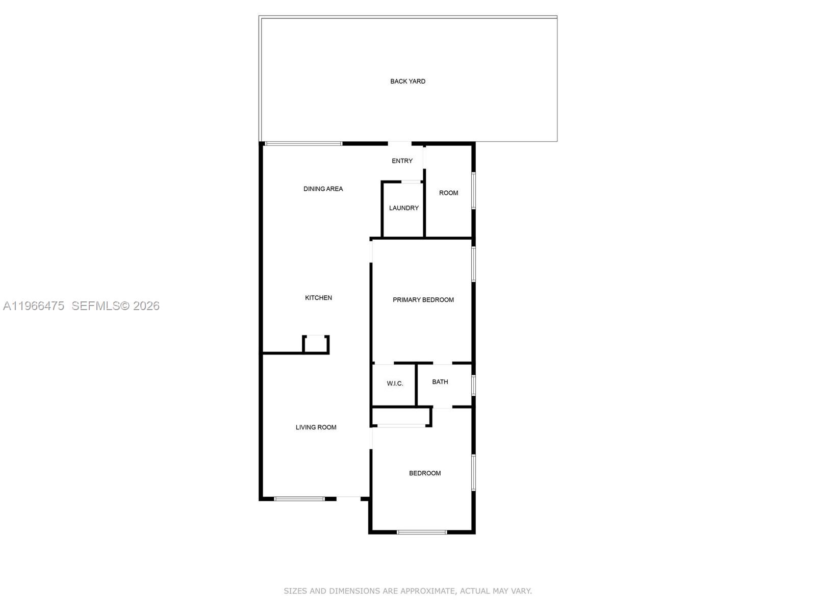
Discover this charming duplex in Oakland Park, offering 1,350 sqft per unit, just minutes from the beach! Each unit features 2 bedrooms and a small den, perfect for a home office or extra space. The South Unit has two bathrooms, while the North Unit has one. Both units include a den, living room, open kitchen, dining area, and a convenient laundry room. Tiled floors and central AC provide modern comfort. Enjoy a fenced backyard, shed, and four dedicated parking spots. Both units are tenant-occupied, with tenants covering all utilities and the landlord only responsible for yard maintenance. Floorplans and photos are from the North Unit. Financials upon request. Don’t miss out on this income-generating property close to the beach!
OAKLAND PARK SECOND ADD 2-40 B LOT 20 LESS S 75,LOT 23 LESS S 75 BLK G-3
Less Than 1/4 Acre Lot
Discover this charming duplex in Oakland Park, offering 1,350 sqft per unit, just minutes from the beach! Each unit features 2 bedrooms and a small den, perfect for a home office or extra space. The South Unit has two bathrooms, while the North Unit has one. Both units include a den, living room, open kitchen, dining area, and a convenient laundry room. Tiled floors and central AC provide modern comfort. Enjoy a fenced backyard, shed, and four dedicated parking spots. Both units are tenant-occupied, with tenants covering all utilities and the landlord only responsible for yard maintenance. Floorplans and photos are from the North Unit. Financials upon request. Don’t miss out on this income-generating property close to the beach!
City:Oakland Park,Zoning:R-2,List A O R:A-Miami Association of REALTORS,Stories:1,Tax Year:2025,Latitude:26.1682769,Cooling Y N:1,Heating Y N:1,List Price:950000,Listing Id:A11966475,Longitude:-80.1242387,Mls Status:Active,Year Built:1963,Possession:1:Rental Agreement,Postal Code:33334,Street Name:17th Ave,Coordinates:1:26.1682769,Photos Count:38,Building Name:OAKLAND PARK SECOND ADD,Days On Market:1,Listing Terms:1:Conventional,2:FHA,3:VA Loan,Lot Size Units:Square Feet,M I A M I R E_ Area:3360,M L S Area Major:Oakland Park Second Add,On Market Date:2026-02-16,Parcel Number:494223060790,Parking Total:4,Property Type:Residential Income,Stories Total:1,Street Number:3241,M I A M I R E_ Style:Duplex,Public Remarks:Discover this charming duplex in Oakland Park, offering 1,350 sqft per unit, just minutes from the beach! Each unit features 2 bedrooms and a small den, perfect for a home office or extra space. The South Unit has two bathrooms, while the North Unit has one. Both units include a den, living room, open kitchen, dining area, and a convenient laundry room. Tiled floors and central AC provide modern comfort. Enjoy a fenced backyard, shed, and four dedicated parking spots. Both units are tenant-occupied, with tenants covering all utilities and the landlord only responsible for yard maintenance. Floorplans and photos are from the North Unit. Financials upon request. Don’t miss out on this income-generating property close to the beach!,County Or Parish:Broward County,Expiration Date:2026-08-15,List Office Name:Barnes International Realty, LLC,Standard Status:Active,Living Area Units:Square Feet,Major Change Type:New,Postal Code Plus4:5208,Property Sub Type:Duplex,State Or Province:FL,Street Dir Prefix:NE,Subdivision Name:OAKLAND PARK SECOND ADD,Tax Annual Amount:14811,Total Actual Rent:69000,Unparsed Address:3241 NE 17th Ave, Oakland Park FL 33334,Listing Agreement:Exclusive Right To Sell,M I A M I R E_ Blogging:1,Operating Expense:19000,Year Built Details:Unknown,Building Area Units:Square Feet,Leasable Area Units:Square Feet,M I A M I R E_ Flood Zone:X,Original List Price:950000,Public Survey Range:42,Documents Available:1:Deposit - Last Months Rent,2:Deposit - Security,3:Copy Of Lease(S),4:Other Available Information,5:Rent Rolls,6:Existing Survey,I D X Participation Y N:1,M I A M I R E_ N A R Rules Y N:1,Net Operating Income:50000,Number Of Units Total:2,Syndication Remarks:Discover this charming duplex in Oakland Park, offering 1,350 sqft per unit, just minutes from the beach! Each unit features 2 bedrooms and a small den, perfect for a home office or extra space. The South Unit has two bathrooms, while the North Unit has one. Both units include a den, living room, open kitchen, dining area, and a convenient laundry room. Tiled floors and central AC provide modern comfort. Enjoy a fenced backyard, shed, and four dedicated parking spots. Both units are tenant-occupied, with tenants covering all utilities and the landlord only responsible for yard maintenance. Floorplans and photos are from the North Unit. Financials upon request. Don’t miss out on this income-generating property close to the beach!,Listing Contract Date:2026-02-16,Originating System I D:miamire,Public Survey Section:30,Showing Instructions:See Broker Remarks,Showing Assist,Street Number Numeric:3241,Tax Legal Description:OAKLAND PARK SECOND ADD 2-40 B LOT 20 LESS S 75,LOT 23 LESS S 75 BLK G-3,M I A M I R E_ Current Price:950000,Public Survey Township:42,M I A M I R E_ Municipal Code:49,Originating System Name:Miami Association of REALTORS®,M I A M I R E_ Adjusted Area S F:2695,M I A M I R E_ Exp Incl Retax Y N:1,M I A M I R E_ Geographic Area:Ft Ldale NE (3240-3270;3350-3380;3440-3450;3700),M I A M I R E_ Internet Remarks:Discover this charming duplex in Oakland Park.,M I A M I R E_ Parcel Number M L X:0790,M I A M I R E_ Separate Meter Y N:1,M I A M I R E_ Showing Time Flag:1,M I A M I R E_ Street View Param:1$26.168277$-80.124217$273.26$13.33$1.00$65GgbeHtL8GMFLOdfQig9A,Contract Status Change Date:2026-02-16,Internet Address Display Y N:1,M I A M I R E_ Cable Available Y N:1,Number Of Units In Community:2,Internet Consumer Comment Y N:1,M I A M I R E_ Ok To Advertise List:With Written Broker Approval,M I A M I R E_ Subdivision Number:6,M I A M I R E_ Exp Incl Insurance Y N:1,M I A M I R E_ Fill From Record_ M U I:403792437,M I A M I R E_ Agent Alternate Phone:954-278-0515,Internet Entire Listing Display Y N:1,M I A M I R E_ Address Internet Display:3241 NE 17th Ave,M I A M I R E_ Exp Incl Lawn Maintenance Y N:1,Internet Automated Valuation Display Y N:1,
- Price $950,000.00
- Price Change: 2026-02-16
- Lot size sq. ft.
- Price per sq.ft. $
- Year Build 1963
- Waterfront
- View
- Pool Yes
- Style Attached
- Construction Concrete Block Construction
- Parking Description
- Flooring Type Ceramic Floor
- Property Type Residential Income
- Status Active
- Listed 2026-02-16
- Days on Market 80
- Furnished
- City Oakland Park
- Zip 33334
- State Florida
- Subdivision
- Development Name OAKLAND PARK SECOND ADD
- HOA Fees
- Taxes 14811
- Taxes Year 2025
En
Ru
Es