2554 8th St ,Mixed Use для продажи & аренды
2554 8th St для продажи & аренды















Цена $4,800,000.00
- Размер территории 43661
- Год постройки 2026
- Вид на воду
- Zip 33135
- Стиль
- Парковка Assigned, Common
- Бассейн Yes
- Статус Active
Описание
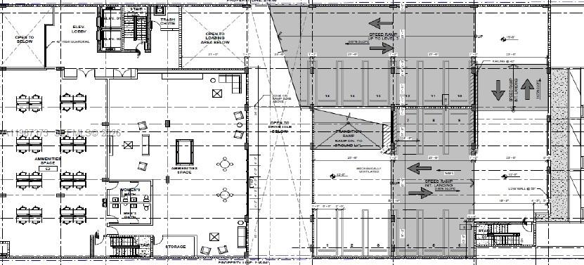
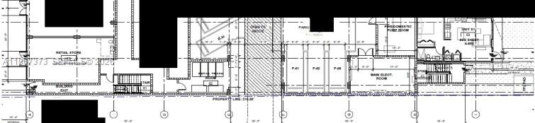
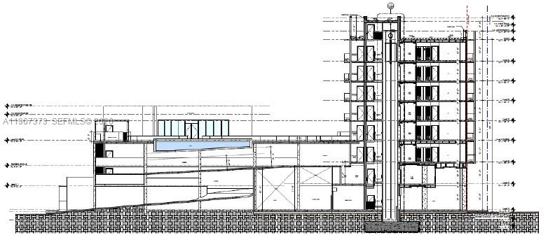
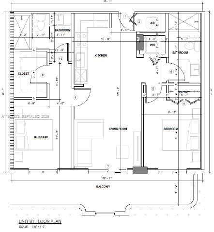
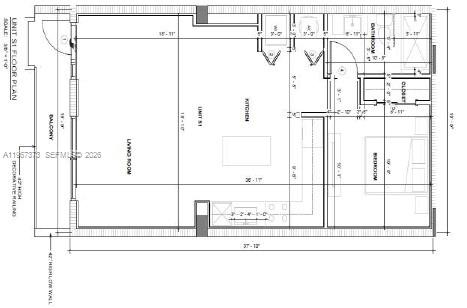
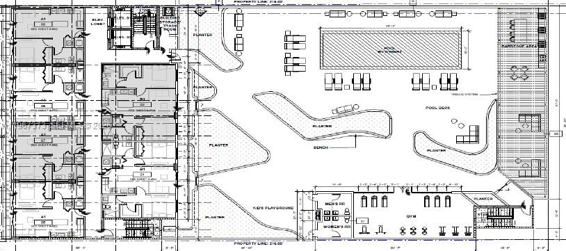
Located on Southwest 8th Street in the premium Little Havana corridor, this is an exceptional development opportunity with plans nearly approved, significantly reducing time to build. The property sits on a 21,002 SF lot and allows for a maximum height of 8 stories under T6-8 O and T4-R zoning, permitting multifamily, hospitality, medical, and retail uses. The proposed project includes 37 residential units comprised of 3 studios (1D/1B) at 600 SF, 24 one-bedroom/one-bath units at 611 SF, and 10 two-bedroom/two-bath units at 862 SF. The mixed-use component features 2 retail spaces totaling 2,500 SF (which can be combined), 2,105 SF of mini storage, and 2,500 SF of office space. The development also includes 10,969 SF of amenities highlighted by a pool deck, gardens, and grill area, with approximately 43,661 SF under A/C and 60 parking spaces. Strategically positioned across from the newly delivered 200-unit Gateway to Little Havana project with 10,000 SF of retail, directly across from Miami Dade College with 6,500 enrolled students, within walking distance to the Little Havana Arts and Entertainment District, and surrounded by more than 319,799 residents within a three-mile radius, this project represents a prime, high-impact mixed-use investment opportunity in one of Miami’s fastest-growing urban corridors.
HAZEL PARK PB 13-19 LOT 4 BLK 1 LOT SIZE 50.000 X 100 OR 16862-3774 0795 4 COC 24205-4167 01 2006 5
City Location, Near Airport
Located on Southwest 8th Street in the premium Little Havana corridor, this is an exceptional development opportunity with plans nearly approved, significantly reducing time to build. The property sits on a 21,002 SF lot and allows for a maximum height of 8 stories under T6-8 O and T4-R zoning, permitting multifamily, hospitality, medical, and retail uses. The proposed project includes 37 residential units comprised of 3 studios (1D/1B) at 600 SF, 24 one-bedroom/one-bath units at 611 SF, and 10 two-bedroom/two-bath units at 862 SF. The mixed-use component features 2 retail spaces totaling 2,500 SF (which can be combined), 2,105 SF of mini storage, and 2,500 SF of office space. The development also includes 10,969 SF of amenities highlighted by a pool deck, gardens, and grill area, with approximately 43,661 SF under A/C and 60 parking spaces. Strategically positioned across from the newly delivered 200-unit Gateway to Little Havana project with 10,000 SF of retail, directly across from Miami Dade College with 6,500 enrolled students, within walking distance to the Little Havana Arts and Entertainment District, and surrounded by more than 319,799 residents within a three-mile radius, this project represents a prime, high-impact mixed-use investment opportunity in one of Miami’s fastest-growing urban corridors.
City:Miami,Zoning:6100,List A O R:A-Miami Association of REALTORS,Stories:8,Latitude:25.7650373,List Price:4800000,Listing Id:A11967373,Longitude:-80.237686,Mls Status:Active,Ownership:Corporation,Year Built:2026,Inclusions:Land Only,Postal Code:33135,Street Name:8th St,Coordinates:1:25.7650373,Lot Features:1:Near Airport,Photos Count:15,Business Type:1:Retail Space,Days On Market:5,Lot Size Units:Square Feet,M I A M I R E_ Area:41,On Market Date:2026-02-13,Parcel Number:01-41-10-009-0030,Parking Total:60,Property Type:Commercial Sale,Stories Total:8,Street Number:2554,Public Remarks:Located on Southwest 8th Street in the premium Little Havana corridor, this is an exceptional development opportunity with plans nearly approved, significantly reducing time to build. The property sits on a 21,002 SF lot and allows for a maximum height of 8 stories under T6-8 O and T4-R zoning, permitting multifamily, hospitality, medical, and retail uses. The proposed project includes 37 residential units comprised of 3 studios (1D/1B) at 600 SF, 24 one-bedroom/one-bath units at 611 SF, and 10 two-bedroom/two-bath units at 862 SF. The mixed-use component features 2 retail spaces totaling 2,500 SF (which can be combined), 2,105 SF of mini storage, and 2,500 SF of office space. The development also includes 10,969 SF of amenities highlighted by a pool deck, gardens, and grill area, with approximately 43,661 SF under A/C and 60 parking spaces. Strategically positioned across from the newly delivered 200-unit Gateway to Little Havana project with 10,000 SF of retail, directly across from Miami Dade College with 6,500 enrolled students, within walking distance to the Little Havana Arts and Entertainment District, and surrounded by more than 319,799 residents within a three-mile radius, this project represents a prime, high-impact mixed-use investment opportunity in one of Miami’s fastest-growing urban corridors.,County Or Parish:Miami-Dade County,Expiration Date:2026-08-13,List Office Name:ISC Realty Corp,Standard Status:Active,Living Area Units:Square Feet,M I A M I R E_ Num Bays:1,Major Change Type:New,Parking Features:1:Common,Postal Code Plus4:3006,Property Sub Type:Mixed Use,State Or Province:FL,Street Dir Prefix:SW,Unparsed Address:2554 SW 8th St, Miami FL 33135,Listing Agreement:Exclusive Right To Sell,M I A M I R E_ Blogging:1,Security Features:1:Security Fence,Year Built Details:New Construction,Building Area Total:43661,Building Area Units:Square Feet,Leasable Area Units:Square Feet,Lot Size Square Feet:21002,M I A M I R E_ Flood Zone:X,M I A M I R E_ For Sale Y N:1,M I A M I R E_ Num Floors:8,New Construction Y N:1,Number Of Buildings:1,Original List Price:4800000,Public Survey Range:41,I D X Participation Y N:1,M I A M I R E_ N A R Rules Y N:1,M I A M I R E_ Num Offices:2,Syndication Remarks:Located on Southwest 8th Street in the premium Little Havana corridor, this is an exceptional development opportunity with plans nearly approved, significantly reducing time to build. The property sits on a 21,002 SF lot and allows for a maximum height of 8 stories under T6-8 O and T4-R zoning, permitting multifamily, hospitality, medical, and retail uses. The proposed project includes 37 residential units comprised of 3 studios (1D/1B) at 600 SF, 24 one-bedroom/one-bath units at 611 SF, and 10 two-bedroom/two-bath units at 862 SF. The mixed-use component features 2 retail spaces totaling 2,500 SF (which can be combined), 2,105 SF of mini storage, and 2,500 SF of office space. The development also includes 10,969 SF of amenities highlighted by a pool deck, gardens, and grill area, with approximately 43,661 SF under A/C and 60 parking spaces. Strategically positioned across from the newly delivered 200-unit Gateway to Little Havana project with 10,000 SF of retail, directly across from Miami Dade College with 6,500 enrolled students, within walking distance to the Little Havana Arts and Entertainment District, and surrounded by more than 319,799 residents within a three-mile radius, this project represents a prime, high-impact mixed-use investment opportunity in one of Miami’s fastest-growing urban corridors.,Listing Contract Date:2026-02-13,Originating System I D:miamire,Public Survey Section:10,Street Number Numeric:2554,Tax Legal Description:HAZEL PARK PB 13-19 LOT 4 BLK 1 LOT SIZE 50.000 X 100 OR 16862-3774 0795 4 COC 24205-4167 01 2006 5,Electric On Property Y N:1,M I A M I R E_ Current Price:4800000,M I A M I R E_ Milesto Beach:2,Public Survey Township:41,M I A M I R E_ Total Mortgage:2200000,Originating System Name:Miami Association of REALTORS®,M I A M I R E_ Internet Remarks:Little Havana corridor, exceptional development opportunity w/plans nearly approved. 21,002 SF lot & allows for a maximum height of 8 stories,M I A M I R E_ Num Loading Doors:1,M I A M I R E_ Parcel Number M L X:0030,M I A M I R E_ Street View Param:1$25.764938$-80.237717$227.08$13.33$1.00$CAoSFkNJSE0wb2dLRUlDQWdJRHk3ZUNCQVE.,Contract Status Change Date:2026-02-13,Distance To Freeway Numeric:1,Internet Address Display Y N:1,Number Of Units In Community:40,Internet Consumer Comment Y N:1,M I A M I R E_ Ok To Advertise List:No,M I A M I R E_ Subdivision Number:9,M I A M I R E_ Agent Alternate Phone:786-210-7653,M I A M I R E_ Improvement Height C O M:6-9 Stories,Internet Entire Listing Display Y N:1,M I A M I R E_ Address Internet Display:2554 SW 8th St,Internet Automated Valuation Display Y N:1,
- Цена $4,800,000.00
- Цена изменилась: 2026-02-17
- Размер территории кв.футов
- Цена за кв.фут $
- Год постройки 2026
- Вид на воду
- Вид
- Бассейн Yes
- Стиль
- Cтроительство
- Парковка Assigned, Common
- Тип настила Other
- Тип объекта Commercial Sale
- Статус Active
- Опубликовано 2026-02-17
- Активен в листинге (дней) 79
- Меблированный
- City Miami
- Zip 33135
- State Florida
- Subdivision
- Development Name
- HOA Fees
- Taxes
- Taxes Year
En
Ru
Es