1352 14th St ,Detached, Quadruplex, Third Westmoreland Addn для продажи
1352 14th St для продажи









Цена $1,050,000.00
- Размер территории 3926
- Год постройки 1925
- Вид на воду
- Zip 33145
- Стиль Detached
- Парковка
- Бассейн Yes
- Статус Active With Contract
Описание
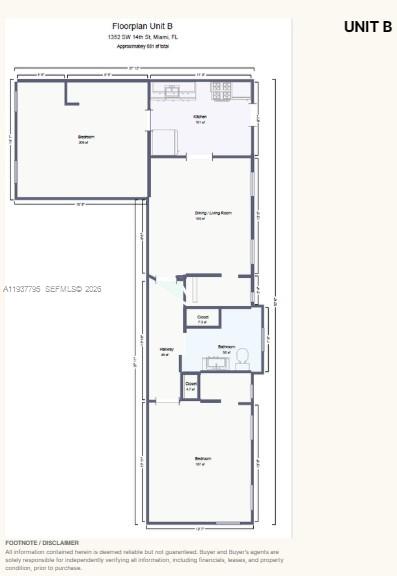
Turn-key income-producing fourplex in the highly sought-after Coral Way neighborhood of Miami. Strong rental demand supports this stabilized investment comprised of two separate structures with individual meters. Currently configured as four units: three 2-bedroom/1-bath apartments in the main structure and a separate 2-bedroom/1-bath cottage-style unit at the rear of the property, offering added privacy and tenant appeal. Units have been renovated and updated over recent years, including new stainless steel appliances, updated kitchens and bathrooms, new flooring, fresh interior paint, and select A/C replacements. On-site, owner-controlled coin-operated laundry provides additional ancillary income. Property generates approximately $102,000 in gross annual income with stable in-place tenancy and defined lease rollovers. Ideal opportunity for an investor seeking immediate cash flow or an owner-occupant looking to live in one unit while offsetting expenses with rental income from the others. Centrally located minutes from Brickell, Downtown Miami, and Coconut Grove. Call for further details. All information contained herein is deemed reliable but not guaranteed. Buyer and Buyer?s agents are solely responsible for independently verifying all information, including financials, leases, and property condition, before purchase.
THIRD WESTMORELAND ADD PB 4-127 LOT 10 BLK 20 & N1/2 OF ALLEY LYG S & ADJ CLOSED PER ORD 13492 LOT SIZE 7500 SQ FT M/L
1/4 To Less Than 1/2 Acre Lot
Turn-key income-producing fourplex in the highly sought-after Coral Way neighborhood of Miami. Strong rental demand supports this stabilized investment comprised of two separate structures with individual meters. Currently configured as four units: three 2-bedroom/1-bath apartments in the main structure and a separate 2-bedroom/1-bath cottage-style unit at the rear of the property, offering added privacy and tenant appeal. Units have been renovated and updated over recent years, including new stainless steel appliances, updated kitchens and bathrooms, new flooring, fresh interior paint, and select A/C replacements. On-site, owner-controlled coin-operated laundry provides additional ancillary income. Property generates approximately $102,000 in gross annual income with stable in-place tenancy and defined lease rollovers. Ideal opportunity for an investor seeking immediate cash flow or an owner-occupant looking to live in one unit while offsetting expenses with rental income from the others. Centrally located minutes from Brickell, Downtown Miami, and Coconut Grove. Call for further details. All information contained herein is deemed reliable but not guaranteed. Buyer and Buyer?s agents are solely responsible for independently verifying all information, including financials, leases, and property condition, before purchase.
City:Miami,Zoning:0100,List A O R:A-Miami Association of REALTORS,Stories:2,Tax Year:2025,Flooring:1:Terrazzo,Latitude:25.7596032,Cooling Y N:1,List Price:1050000,Listing Id:A11937795,Longitude:-80.2174414,Mls Status:Active With Contract,Year Built:1925,Living Area:3538,Postal Code:33145,Street Name:14th St,Contingency:Pending Inspections,Coordinates:1:25.7596032,Photos Count:9,Building Name:THIRD WESTMORELAND ADDN,Days On Market:7,Listing Terms:1:Conventional,Lot Size Units:Square Feet,M I A M I R E_ Area:41,M L S Area Major:Third Westmoreland Addn,On Market Date:2026-01-02,Parcel Number:01-41-11-022-0300,Parking Total:2,Property Type:Residential Income,Rent Includes:1:Water,Stories Total:2,Street Number:1352,M I A M I R E_ Style:Fourplex,Public Remarks:Turn-key income-producing fourplex in the highly sought-after Coral Way neighborhood of Miami. Strong rental demand supports this stabilized investment comprised of two separate structures with individual meters. Currently configured as four units: three 2-bedroom/1-bath apartments in the main structure and a separate 2-bedroom/1-bath cottage-style unit at the rear of the property, offering added privacy and tenant appeal. Units have been renovated and updated over recent years, including new stainless steel appliances, updated kitchens and bathrooms, new flooring, fresh interior paint, and select A/C replacements. On-site, owner-controlled coin-operated laundry provides additional ancillary income. Property generates approximately $102,000 in gross annual income with stable in-place tenancy and defined lease rollovers. Ideal opportunity for an investor seeking immediate cash flow or an owner-occupant looking to live in one unit while offsetting expenses with rental income from the others. Centrally located minutes from Brickell, Downtown Miami, and Coconut Grove. Call for further details. All information contained herein is deemed reliable but not guaranteed. Buyer and Buyer?s agents are solely responsible for independently verifying all information, including financials, leases, and property condition, before purchase.,Structure Type:1:Fourplex,County Or Parish:Miami-Dade County,Expiration Date:2026-07-03,List Office Name:Beachfront Realty Inc,Standard Status:Active Under Contract,Living Area Units:Square Feet,Major Change Type:Active Under Contract,Postal Code Plus4:1646,Property Sub Type:Quadruplex,State Or Province:FL,Street Dir Prefix:SW,Subdivision Name:THIRD WESTMORELAND ADDN,Tax Annual Amount:17968,Unparsed Address:1352 SW 14th St, Miami FL 33145,Listing Agreement:Exclusive Right To Sell,Year Built Details:Resale,Building Area Total:3926,Building Area Units:Square Feet,Leasable Area Units:Square Feet,M I A M I R E_ Flood Zone:X,M I A M I R E_ L P Amt Sq Ft:296.7778,Original List Price:1050000,Public Survey Range:41,I D X Participation Y N:1,M I A M I R E_ Last Status:Active,M I A M I R E_ N A R Rules Y N:1,Syndication Remarks:Turn-key income-producing fourplex in the highly sought-after Coral Way neighborhood of Miami. Strong rental demand supports this stabilized investment comprised of two separate structures with individual meters. Currently configured as four units: three 2-bedroom/1-bath apartments in the main structure and a separate 2-bedroom/1-bath cottage-style unit at the rear of the property, offering added privacy and tenant appeal. Units have been renovated and updated over recent years, including new stainless steel appliances, updated kitchens and bathrooms, new flooring, fresh interior paint, and select A/C replacements. On-site, owner-controlled coin-operated laundry provides additional ancillary income. Property generates approximately $102,000 in gross annual income with stable in-place tenancy and defined lease rollovers. Ideal opportunity for an investor seeking immediate cash flow or an owner-occupant looking to live in one unit while offsetting expenses with rental income from the others. Centrally located minutes from Brickell, Downtown Miami, and Coconut Grove. Call for further details. All information contained herein is deemed reliable but not guaranteed. Buyer and Buyer?s agents are solely responsible for independently verifying all information, including financials, leases, and property condition, before purchase.,Listing Contract Date:2026-01-02,Originating System I D:miamire,Public Survey Section:11,Showing Instructions:Call Listing Agent,See Broker Remarks,Showing Assist,Street Number Numeric:1352,Tax Legal Description:THIRD WESTMORELAND ADD PB 4-127 LOT 10 BLK 20 & N1/2 OF ALLEY LYG S & ADJ CLOSED PER ORD 13492 LOT SIZE 7500 SQ FT M/L,M I A M I R E_ Current Price:1050000,Public Survey Township:41,M I A M I R E_ Municipal Code:1,Originating System Name:Miami Association of REALTORS?,M I A M I R E_ Adjusted Area S F:2645,M I A M I R E_ Internet Remarks:Stabilized fourplex in Coral Way with strong rental demand. Two structures, renovated units, and immediate income potential.,M I A M I R E_ Parcel Number M L X:0300,M I A M I R E_ Separate Meter Y N:1,M I A M I R E_ Showing Time Flag:1,M I A M I R E_ Street View Param:1$25.759558$-80.217449$142.53$13.33$1.00$oblPOxq0SOiVGzS6mxWWjg,Contract Status Change Date:2026-01-09,Internet Address Display Y N:1,Number Of Units In Community:4,M I A M I R E_ Ok To Advertise List:No,M I A M I R E_ Subdivision Number:22,M I A M I R E_ Agent Alternate Phone:305-298-5435,Internet Entire Listing Display Y N:1,M I A M I R E_ Address Internet Display:1352 SW 14th St,M I A M I R E_ R A T I O_ Current Price_ By_ S Q F T:296.78,
- Цена $1,050,000.00
- Цена изменилась: 2026-01-02
- Размер территории кв.футов
- Цена за кв.фут $
- Год постройки 1925
- Вид на воду
- Вид
- Бассейн Yes
- Стиль Detached
- Cтроительство CBS Construction
- Парковка
- Тип настила Ceramic Floor, Terrazzo
- Тип объекта Residential Income
- Статус Active With Contract
- Опубликовано 2026-01-02
- Активен в листинге (дней) 57
- Меблированный
- City Miami
- Zip 33145
- State Florida
- Subdivision
- Development Name THIRD WESTMORELAND ADDN
- HOA Fees
- Taxes 17968
- Taxes Year 2025
En
Ru
Es