1478 2nd Ave ,Detached, Quadruplex, Coral Bay Manor для продажи
1478 2nd Ave для продажи




















































Цена $699,000.00
- Размер территории 2280
- Год постройки 1956
- Вид на воду
- Zip 33034
- Стиль Detached
- Парковка
- Бассейн Yes
- Статус Active
Описание
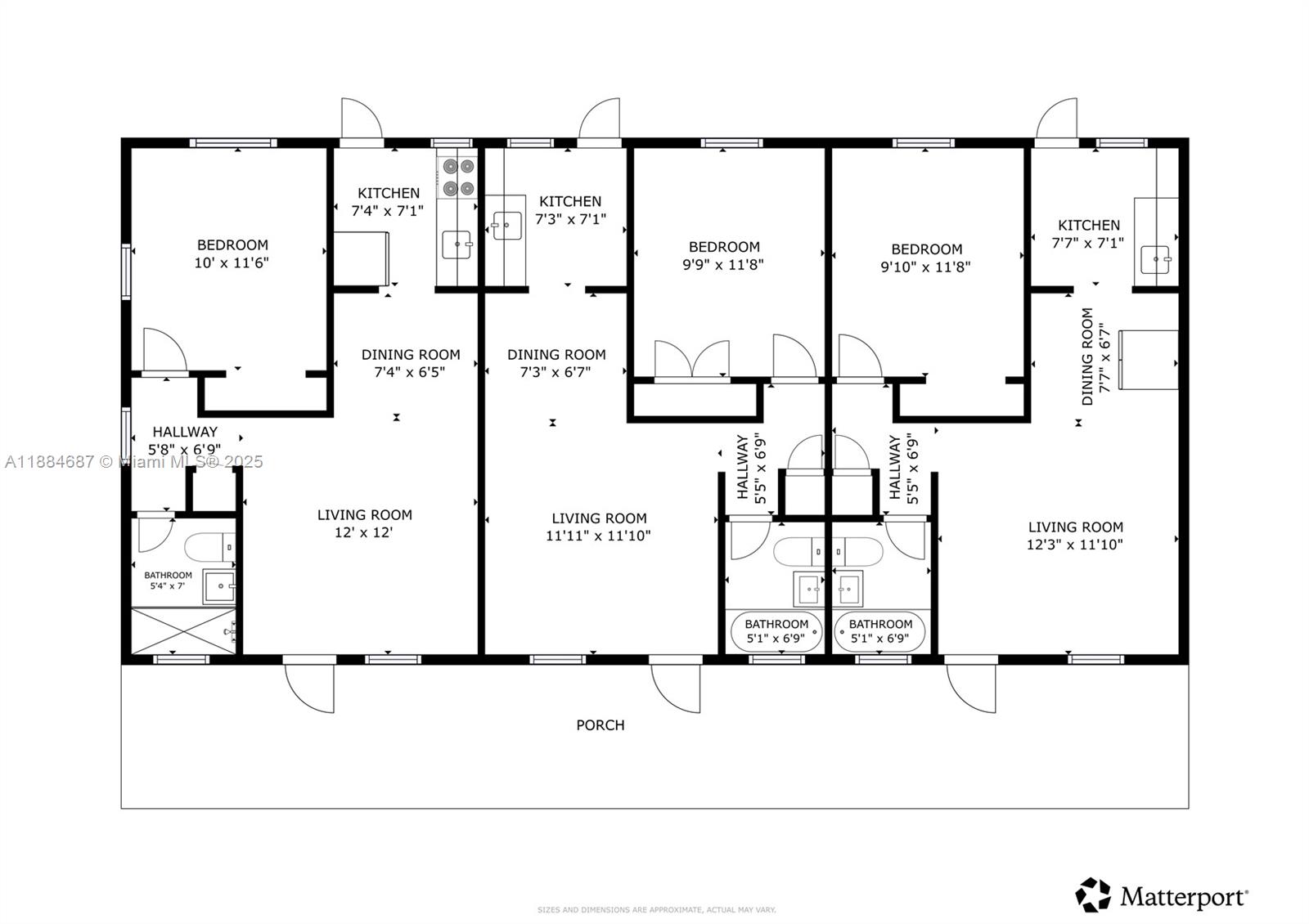
GREAT INVESTMENT OPPORTUNITY! Well-maintained fourplex featuring four spacious 1-bedroom, 1-bathroom units with open floor plans. Each unit has separate water and electric meters for added convenience and reduced owner expenses. A new roof ensures long-term durability and minimal maintenance. Prime location near US-1, the Florida Turnpike, top restaurants, shopping centers, Homestead Outlet Mall, and Downtown Homestead. Positioned at the gateway between Miami and the Florida Keys, this property offers strong rental demand and excellent income potential. Don?t miss the 3D virtual tour and floor plan. May the Force be with you!
24 57 38 CORAL BAY MANOR PB 57-40 LOT 1 BLK 2 LOT SIZE 60.000 X 100 COC 24684-3087 06 2006 1
Less Than 1/4 Acre Lot
GREAT INVESTMENT OPPORTUNITY! Well-maintained fourplex featuring four spacious 1-bedroom, 1-bathroom units with open floor plans. Each unit has separate water and electric meters for added convenience and reduced owner expenses. A new roof ensures long-term durability and minimal maintenance. Prime location near US-1, the Florida Turnpike, top restaurants, shopping centers, Homestead Outlet Mall, and Downtown Homestead. Positioned at the gateway between Miami and the Florida Keys, this property offers strong rental demand and excellent income potential. Don?t miss the 3D virtual tour and floor plan. May the Force be with you!
City:Florida City,Zoning:3000,List A O R:A-Miami Association of REALTORS,Stories:1,Tax Year:2025,Latitude:25.4615985,Cooling Y N:1,List Price:699000,Listing Id:A11884687,Longitude:-80.4804478,Mls Status:Active,Year Built:1956,Directions:Use GPS,Living Area:2280,Postal Code:33034,Street Name:2nd Ave,Coordinates:1:25.4615985,Photos Count:52,Building Name:CORAL BAY MANOR,Days On Market:52,Listing Terms:1:Conventional,Lot Size Units:Square Feet,M I A M I R E_ Area:78,M L S Area Major:Coral Bay Manor,On Market Date:2025-10-21,Parcel Number:16-78-24-020-0210,Parking Total:8,Property Type:Residential Income,Stories Total:1,Street Number:1478,M I A M I R E_ Style:Fourplex,Public Remarks:GREAT INVESTMENT OPPORTUNITY! Well-maintained fourplex featuring four spacious 1-bedroom, 1-bathroom units with open floor plans. Each unit has separate water and electric meters for added convenience and reduced owner expenses. A new roof ensures long-term durability and minimal maintenance. Prime location near US-1, the Florida Turnpike, top restaurants, shopping centers, Homestead Outlet Mall, and Downtown Homestead. Positioned at the gateway between Miami and the Florida Keys, this property offers strong rental demand and excellent income potential. Don?t miss the 3D virtual tour and floor plan. May the Force be with you!,Structure Type:1:Fourplex,County Or Parish:Miami-Dade County,Expiration Date:2026-09-14,List Office Name:The Keyes Company,Standard Status:Active,Living Area Units:Square Feet,Major Change Type:Price Decrease,Postal Code Plus4:2218,Property Sub Type:Quadruplex,State Or Province:FL,Street Dir Prefix:NW,Subdivision Name:CORAL BAY MANOR,Tax Annual Amount:6683,Unparsed Address:1478 NW 2nd Ave, Florida City FL 33034,Listing Agreement:Exclusive Right To Sell,Year Built Details:Effective Year Built,Building Area Total:2280,Building Area Units:Square Feet,Leasable Area Units:Square Feet,M I A M I R E_ Flood Zone:X,M I A M I R E_ L P Amt Sq Ft:306.5789,Original List Price:799000,Previous List Price:799000,Public Survey Range:78,I D X Participation Y N:1,M I A M I R E_ N A R Rules Y N:1,Syndication Remarks:GREAT INVESTMENT OPPORTUNITY! Well-maintained fourplex featuring four spacious 1-bedroom, 1-bathroom units with open floor plans. Each unit has separate water and electric meters for added convenience and reduced owner expenses. A new roof ensures long-term durability and minimal maintenance. Prime location near US-1, the Florida Turnpike, top restaurants, shopping centers, Homestead Outlet Mall, and Downtown Homestead. Positioned at the gateway between Miami and the Florida Keys, this property offers strong rental demand and excellent income potential. Don?t miss the 3D virtual tour and floor plan. May the Force be with you!,Listing Contract Date:2025-10-21,Originating System I D:miamire,Public Survey Section:24,Showing Instructions:Showing Assist,Virtual Showing Available,Street Number Numeric:1478,Tax Legal Description:24 57 38 CORAL BAY MANOR PB 57-40 LOT 1 BLK 2 LOT SIZE 60.000 X 100 COC 24684-3087 06 2006 1,M I A M I R E_ Current Price:699000,Public Survey Township:78,Construction Materials:1:CBS Construction,M I A M I R E_ Municipal Code:16,Originating System Name:Miami Association of REALTORS?,M I A M I R E_ Adjusted Area S F:2040,M I A M I R E_ Internet Remarks:Fourplex with separate utilities, new 2025 roof, prime location near US-1/Turnpike. High rental demand between Miami and the Florida Keys.,M I A M I R E_ Parcel Number M L X:0210,M I A M I R E_ Separate Meter Y N:1,M I A M I R E_ Showing Time Flag:1,M I A M I R E_ Street View Param:1$25.461588$-80.480416$236.15$13.33$1.00$dcQNTCydQGumHQXrRFo37w,M I A M I R E_ Supplement Count:3,Contract Status Change Date:2025-10-21,Internet Address Display Y N:1,M I A M I R E_ Cable Available Y N:1,Number Of Units In Community:4,Internet Consumer Comment Y N:1,M I A M I R E_ Ok To Advertise List:Yes - Attribution NOT Required,M I A M I R E_ Subdivision Number:20,M I A M I R E_ Agent Alternate Phone:305-376-7202,Internet Entire Listing Display Y N:1,M I A M I R E_ Address Internet Display:1478 NW 2nd Ave,M I A M I R E_ R A T I O_ Current Price_ By_ S Q F T:306.58,Internet Automated Valuation Display Y N:1,
- Цена $699,000.00
- Цена изменилась: 2025-12-12
- Размер территории кв.футов
- Цена за кв.фут $
- Год постройки 1956
- Вид на воду
- Вид
- Бассейн Yes
- Стиль Detached
- Cтроительство Concrete Block Construction, CBS Construction
- Парковка
- Тип настила Tile
- Тип объекта Residential Income
- Статус Active
- Опубликовано 2025-12-12
- Активен в листинге (дней) 105
- Меблированный
- City Florida City
- Zip 33034
- State Florida
- Subdivision
- Development Name CORAL BAY MANOR
- HOA Fees
- Taxes 6683
- Taxes Year 2025
En
Ru
Es