3524 4th Ter ,Detached, Duplex, Twelfth St Manors en Venta
3524 4th Ter en Venta



































Precio $1,399,000.00
- Tama帽o de lote 4734
- A帽o de construcci贸n 1988
- Frente al agua
- Zip 33125
- Estilo Detached
- Parking Descripci贸n
- Piscina Yes
- Estado Active
Descripci贸n
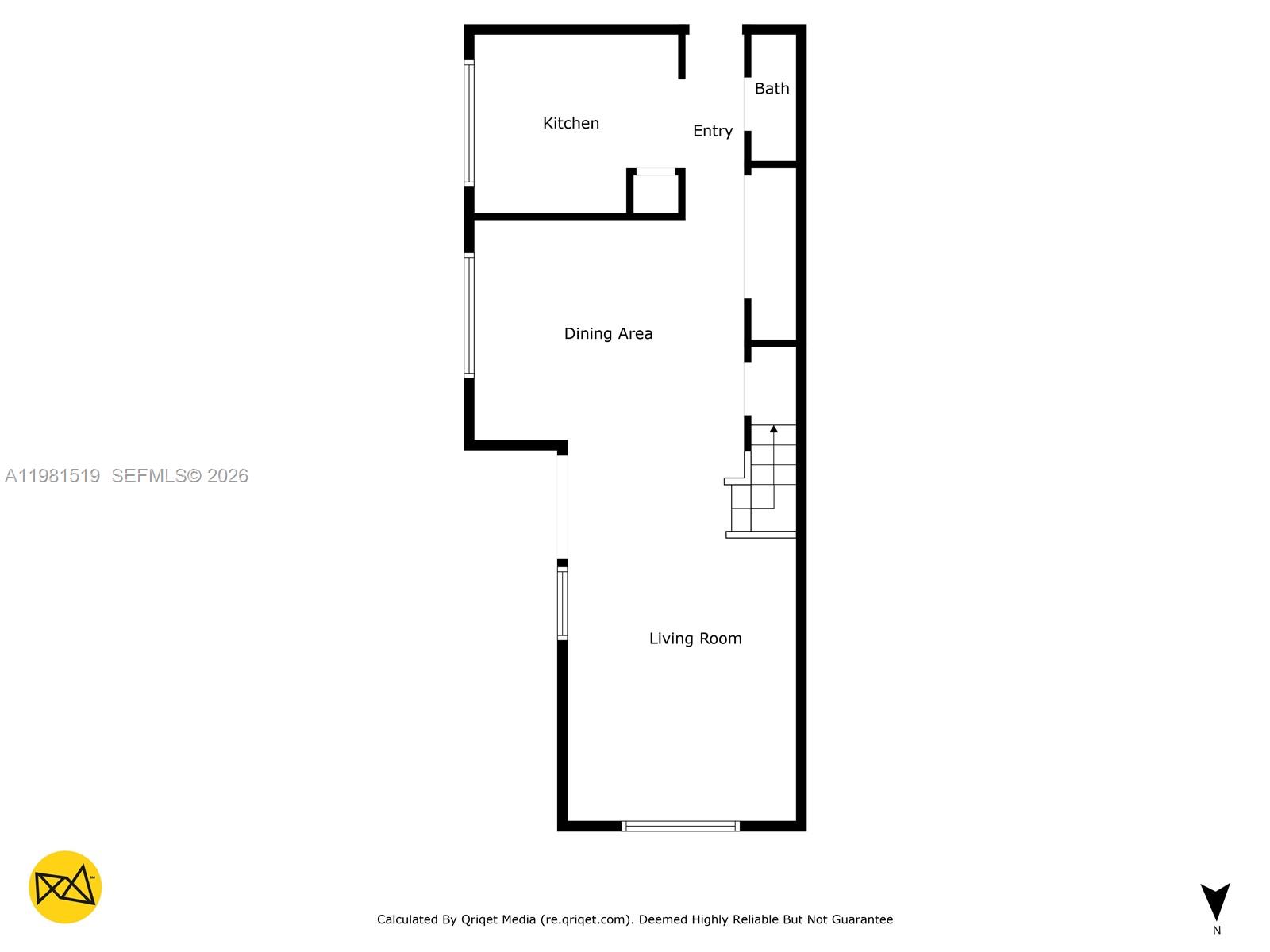
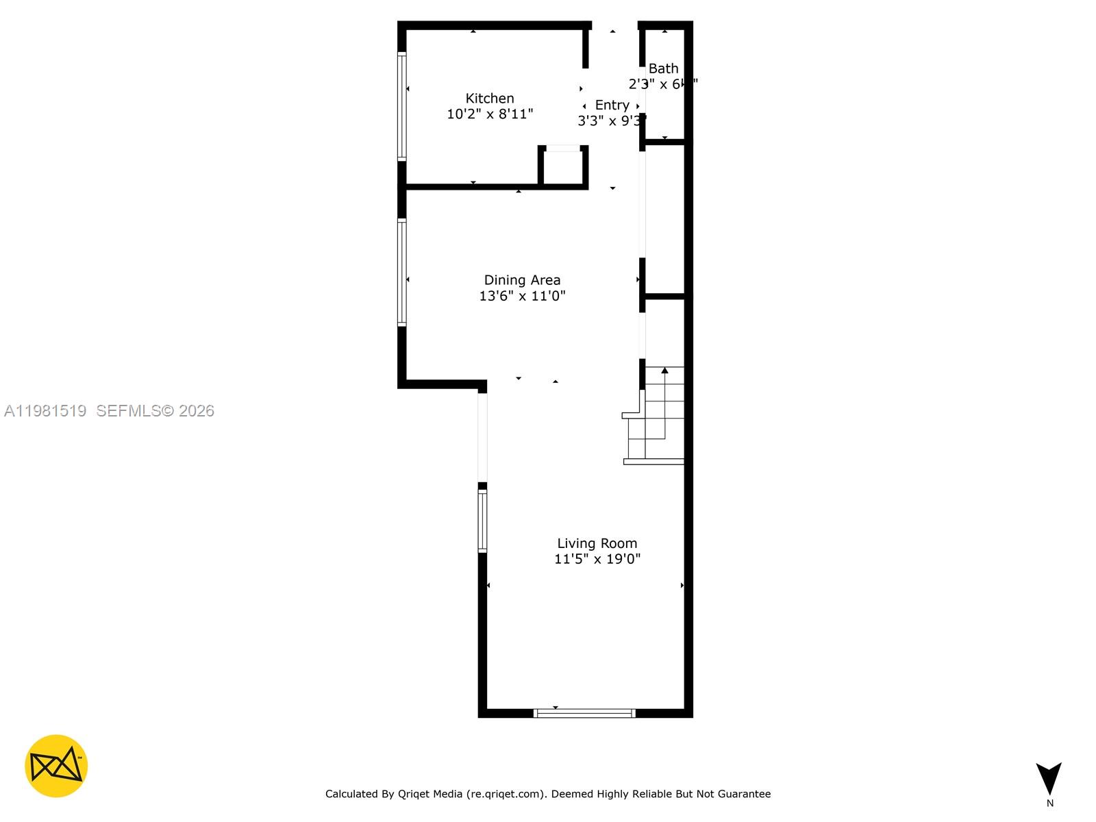
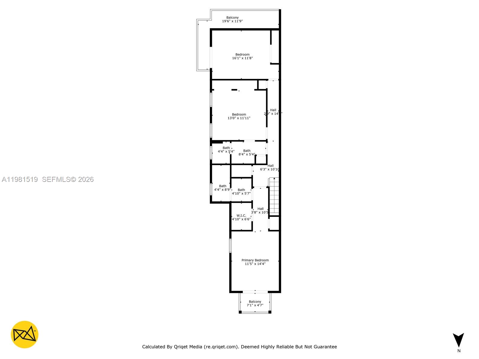
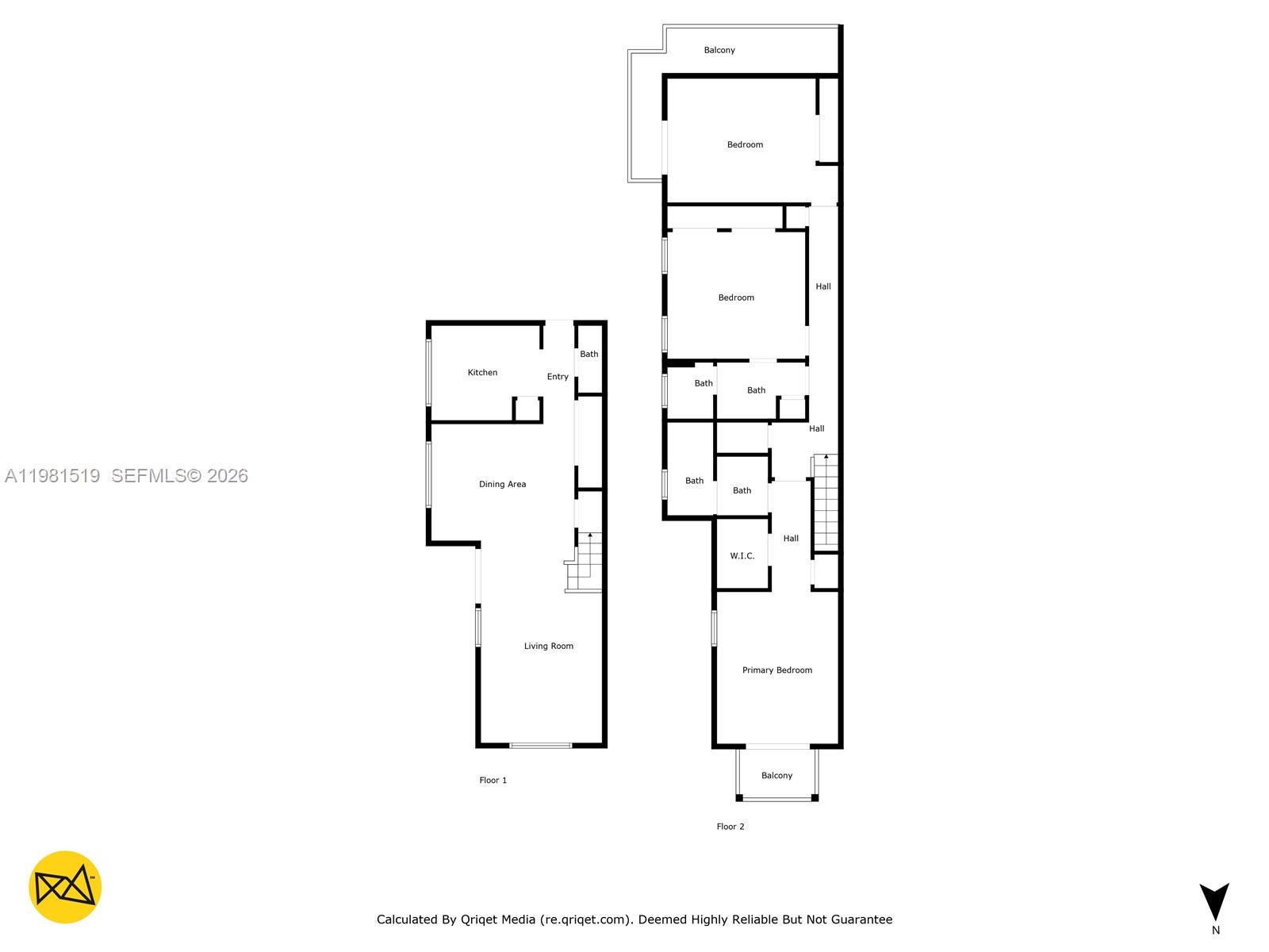
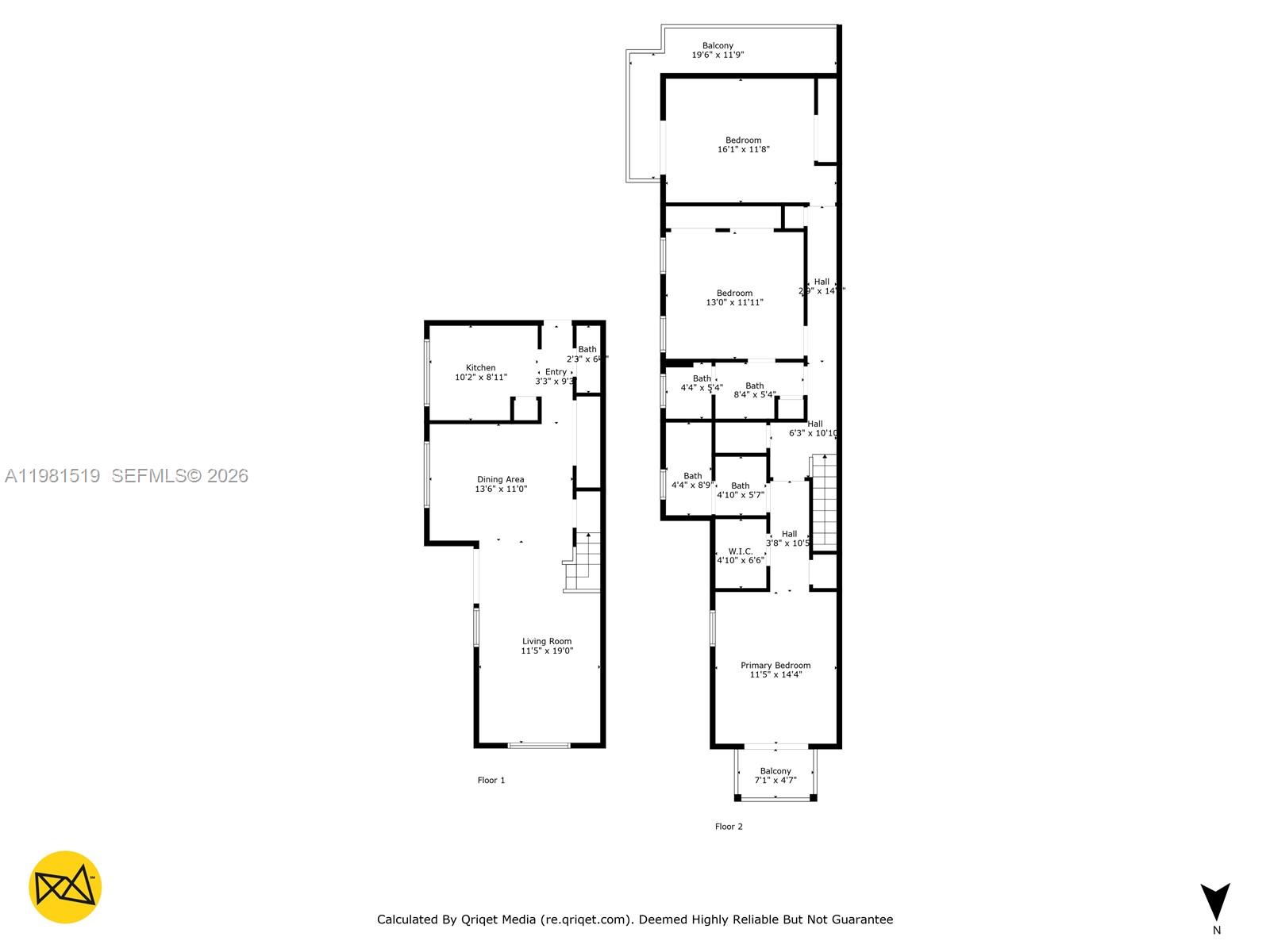
Multi-Family property located in the heart of Miami. New impact windows and doors. 4 yrs roof, 4 units, 2 meters, parking, in-unit laundry, yard area. Long term tenants, month to month. Rent below market.
TWELFTH STREET MANORS PB 5-59 E6FT OF S27FT OF LOT 4 & ALL LOT 5 LESS N5FT OF LOT 5 FOR R/W BLK 24 LOT SIZE 5162 SQ FT OR 18267-3665 0898 3
Less Than 1/4 Acre Lot
Multi-Family property located in the heart of Miami. New impact windows and doors. 4 yrs roof, 4 units, 2 meters, parking, in-unit laundry, yard area. Long term tenants, month to month. Rent below market.
City:Miami,Zoning:5700,Cooling:1:Electric,Heating:1:Electric,List A O R:A-Miami Association of REALTORS,Stories:2,Tax Year:2025,Flooring:1:Wood,Latitude:25.7767089,Cooling Y N:1,Heating Y N:1,List Price:1399000,Listing Id:A11981519,Longitude:-80.2531964,Mls Status:Active,Year Built:1988,Living Area:4350,Postal Code:33125,Street Name:4th Ter,Coordinates:1:25.7767089,Photos Count:35,Building Name:TWELFTH ST MANORS,Days On Market:1,Listing Terms:1:Conventional,2:Owner Will Carry,Lot Size Units:Square Feet,M I A M I R E_ Area:41,M L S Area Major:Twelfth St Manors,On Market Date:2026-03-11,Parcel Number:01-41-04-023-1800,Parking Total:6,Property Type:Residential Income,Stories Total:2,Street Number:3524,M I A M I R E_ Style:Duplex,Public Remarks:Multi-Family property located in the heart of Miami. New impact windows and doors. 4 yrs roof, 4 units, 2 meters, parking, in-unit laundry, yard area. Long term tenants, month to month. Rent below market.,County Or Parish:Miami-Dade County,Expiration Date:2027-03-10,List Office Name:Xcellence Realty,Standard Status:Active,Living Area Units:Square Feet,Major Change Type:New,Postal Code Plus4:4051,Property Sub Type:Duplex,State Or Province:FL,Street Dir Prefix:NW,Subdivision Name:TWELFTH ST MANORS,Tax Annual Amount:12319,Unparsed Address:3524 NW 4th Ter, Miami FL 33125,Listing Agreement:Exclusive Right To Sell,Year Built Details:Resale,Building Area Total:4734,Building Area Units:Square Feet,Leasable Area Units:Square Feet,M I A M I R E_ Flood Zone:X,M I A M I R E_ L P Amt Sq Ft:321.6092,Original List Price:1399000,Public Survey Range:41,I D X Participation Y N:1,M I A M I R E_ N A R Rules Y N:1,Number Of Units Total:4,Syndication Remarks:Multi-Family property located in the heart of Miami. New impact windows and doors. 4 yrs roof, 4 units, 2 meters, parking, in-unit laundry, yard area. Long term tenants, month to month. Rent below market.,Listing Contract Date:2026-03-11,Originating System I D:miamire,Public Survey Section:4,Showing Instructions:24 Hour Notice,Appointment Only,Call Listing Agent,Showing Assist,Street Number Numeric:3524,Tax Legal Description:TWELFTH STREET MANORS PB 5-59 E6FT OF S27FT OF LOT 4 & ALL LOT 5 LESS N5FT OF LOT 5 FOR R/W BLK 24 LOT SIZE 5162 SQ FT OR 18267-3665 0898 3,M I A M I R E_ Current Price:1399000,Public Survey Township:41,M I A M I R E_ Municipal Code:1,Originating System Name:Miami Association of REALTORS庐,M I A M I R E_ Adjusted Area S F:4012,M I A M I R E_ Exp Incl Retax Y N:1,M I A M I R E_ Internet Remarks:Multi-Family property located in the heart of Miami. New impact windows / doors. new roof, 4 units, 2 meters, in-unit laundry, parking, yard area.,M I A M I R E_ Parcel Number M L X:1800,M I A M I R E_ Separate Meter Y N:1,M I A M I R E_ Showing Time Flag:1,M I A M I R E_ Street View Param:1$25.776714$-80.253172$299.03$13.33$1.00$SF9Srxm5Nx_neCEE-y8E7w,Contract Status Change Date:2026-03-11,Internet Address Display Y N:1,M I A M I R E_ Cable Available Y N:1,Number Of Units In Community:4,M I A M I R E_ Ok To Advertise List:No,M I A M I R E_ Subdivision Number:23,M I A M I R E_ Fill From Record_ M U I:408950471,M I A M I R E_ Agent Alternate Phone:305-305-9597,M I A M I R E_ Exp Incl Property Tax Y N:1,Internet Entire Listing Display Y N:1,M I A M I R E_ Address Internet Display:3524 NW 4th Ter,M I A M I R E_ R A T I O_ Current Price_ By_ S Q F T:321.61,
- Precio $1,399,000.00
- Cambio de precio: 2026-03-12
- Tama帽o de lote sq. ft.
- Precio por p.c. $
- A帽o de construcci贸n 1988
- Frente al agua
- Ver
- Piscina Yes
- Estilo Detached
- Construcci贸n CBS Construction
- Parking Descripci贸n
- Tipo de suelo Ceramic Floor, Wood
- Tipo de propiedad Residential Income
- Estado Active
- Listado 2026-03-12
- D铆as en el mercado 56
- Amueblado
- City Miami
- Zip 33125
- State Florida
- Subdivision
- Development Name TWELFTH ST MANORS
- HOA Fees 0
- Taxes 12319
- Taxes Year 2025
En
Ru
Es